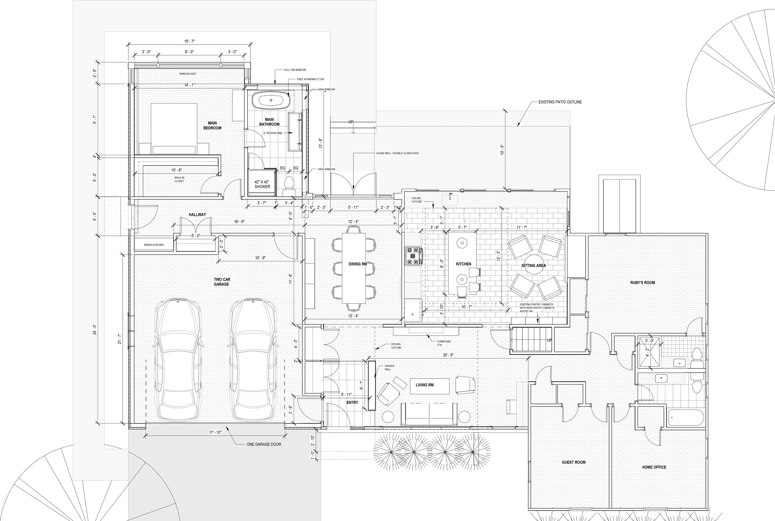
Green Acres Residence, Hudson, NY

Renovation and addition to 1,620 sf existing single-family house in Hudson, NY. The design includes a larger two-car garage, mud room, media room, master bedroom, and bathroom suite; includes plan for future pool, deck, and pool house.

 
 
Property Site.jpg
 
View from Above with Garage.jpg
 
2_210401_GA_views-3.jpg
 
5_210401_GA_views-6.jpg